Thời buổi kinh tế hiện đại, việc gia công chi tiết máy bằng các phương pháp gia công cơ khí hiện đại bằng công nghệ CNC : phay, tiện, chấn, gấp… khá phổ biến. Để thực hiện chính xác cần có một quy trình gia công chặt chẽ, nghiêm ngặt và đúng chuẩn. Cùng HTC Group tìm hiểu chi tiết về quy trình gia công chi tiết theo chuẩn qua bài dưới đây

Các bước cơ bản trong quy trình gia công chi tiết
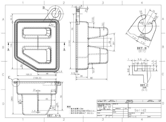
Nghiên cứu bản vẽ thiết kế

Nghiên cứu chi tiết bản vẽ thiết kế là điểm nhấn quan trọng khi gia công
- Đọc kỹ bản vẽ để hiểu rõ yêu cầu về kích thước, hình dạng, dung sai, vật liệu và các thông số kỹ thuật khác của chi tiết.
- Xác định các đặc điểm kỹ thuật phức tạp và những điểm cần lưu ý trong quá trình gia công.
Lựa chọn vật liệu
- Chọn loại vật liệu phù hợp với tính chất của chi tiết, đảm bảo đáp ứng các yêu cầu về độ bền, độ cứng, khả năng chịu nhiệt, chịu ăn mòn, v.v.
- Xác định kích thước và hình dạng phôi ban đầu.
Lập kế hoạch gia công
- Xác định các công đoạn gia công cần thiết để tạo ra chi tiết hoàn chỉnh.
- Lựa chọn các phương pháp gia công phù hợp (tiện, phay, bào, khoan, mài,…) và thiết bị gia công.
- Xác định trình tự các công đoạn gia công để đảm bảo hiệu quả và chất lượng sản phẩm.
Gia công
- Chuẩn bị máy móc và dụng cụ: Kiểm tra, bảo dưỡng và điều chỉnh máy móc, dụng cụ cắt gọt trước khi gia công.
- Cố định phôi: Cố định phôi chắc chắn vào máy để đảm bảo độ chính xác trong quá trình gia công.
- Thực hiện các công đoạn gia công: Tiến hành các công đoạn gia công theo kế hoạch đã lập, đảm bảo tuân thủ các thông số kỹ thuật.
- Kiểm tra trung gian: Thực hiện kiểm tra kích thước, hình dạng và chất lượng của chi tiết sau mỗi công đoạn để phát hiện và khắc phục kịp thời các sai sót.
Hoàn thiện bề mặt
Mài: Loại bỏ các vết xước, gờ nhám trên bề mặt chi tiết để đạt được độ nhẵn bóng theo yêu cầu.
Ép nguội: Cải thiện độ cứng, độ bền và độ chính xác của chi tiết.
Kiểm tra cuối cùng
Kiểm tra toàn diện chi tiết thành phẩm để đảm bảo đáp ứng tất cả các yêu cầu kỹ thuật của bản vẽ thiết kế.
Sử dụng các phương pháp kiểm tra như đo đạc, kiểm tra hình chiếu, kiểm tra độ cứng, v.v.
Bao gói và bảo quản
Bao gói sản phẩm cẩn thận để tránh hư hỏng trong quá trình vận chuyển và bảo quản.
Lưu ý: Quy trình gia công chi tiết có thể thay đổi tùy thuộc vào loại sản phẩm, yêu cầu kỹ thuật và công nghệ sản xuất.
Các yếu tố ảnh hưởng đến quy trình gia công chi tiết
- Vật liệu: Tính chất của vật liệu ảnh hưởng đến phương pháp gia công và dụng cụ cắt gọt.
- Máy móc và thiết bị: Độ chính xác, hiệu suất của máy móc ảnh hưởng trực tiếp đến chất lượng sản phẩm.
- Dụng cụ cắt gọt: Chất lượng, độ sắc bén của dụng cụ cắt gọt ảnh hưởng đến bề mặt hoàn thiện và tuổi thọ của dụng cụ.
- Kỹ thuật viên: Kỹ năng, kinh nghiệm của người vận hành máy móc có vai trò quan trọng.
- Môi trường làm việc: Nhiệt độ, độ ẩm, độ sạch của môi trường làm việc ảnh hưởng đến quá trình gia công.

Một số mẫu chi tiết máy được gia công tại cơ khí KCC
Các tiêu chuẩn đo lường về chất lượng chi tiết máy sau gia công
Kích thước và hình dạng
- Độ chính xác kích thước: Các kích thước của chi tiết phải nằm trong giới hạn dung sai cho phép, đảm bảo chi tiết lắp ghép chính xác với các chi tiết khác.
- Độ chính xác hình dạng: Hình dạng của chi tiết phải tuân thủ đúng theo bản vẽ thiết kế, không có các sai lệch về độ tròn, độ phẳng, độ thẳng.
- Độ lệch vị trí: Các vị trí tương đối giữa các bề mặt, các lỗ trên chi tiết phải đảm bảo đúng theo yêu cầu kỹ thuật.
Bề mặt
- Độ nhám: Bề mặt chi tiết phải đạt được độ nhám yêu cầu, đảm bảo tính thẩm mỹ và khả năng chịu mài mòn.
- Độ bóng: Đối với các chi tiết yêu cầu bề mặt bóng, độ bóng phải đạt được theo tiêu chuẩn.
- Vết xước, vết lõm: Bề mặt không được có các vết xước, vết lõm quá lớn ảnh hưởng đến chức năng và thẩm mỹ của chi tiết.
Tính chất vật liệu
- Độ cứng: Chi tiết phải đạt được độ cứng yêu cầu để đảm bảo khả năng chịu tải và chống mài mòn.
- Độ bền: Chi tiết phải chịu được các tải trọng tác dụng trong quá trình làm việc.
- Tính dẻo: Đối với một số chi tiết, tính dẻo là cần thiết để tránh bị gãy.
Tính ổn định
- Biến dạng nhiệt: Khi chịu tác động của nhiệt độ, chi tiết không được biến dạng quá mức ảnh hưởng đến chức năng.
- Mỏi vật liệu: Chi tiết phải chịu được tải trọng lặp đi lặp lại mà không bị gãy.
Các tiêu chuẩn khác
- Trọng lượng: Chi tiết phải đạt được trọng lượng theo yêu cầu.
- Cân bằng động: Đối với các chi tiết quay, cần đảm bảo cân bằng động để tránh rung lắc.
- Tính thẩm mỹ: Bề mặt chi tiết phải đạt được yêu cầu về tính thẩm mỹ.
